Cargando...
Casas Madrid
BUY/FOR SALE RENTAL HOLIDAY RENTAL
Language
Español Deutsch Français Italiano Dansk Nederlands Português Čeština русский 中國的


Ríos Rosas, Chamberí, Madrid

Flat for rent
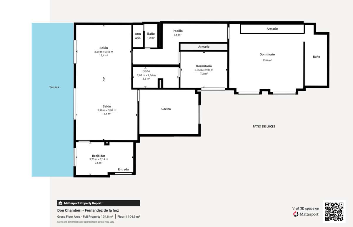
Flat in Ríos Rosas, Chamberí, Madrid.
<
>
Print sign
2.700€ (£ 2.369 app.)
Calle fermandez de la hoz

Reference:
619516
Size:
127m²
Bedroom/s:
2
Furnished:
Not furnished
Floor:
6th
Built-in cupboards:
Yes
Independent dining room:
Yes
Furnished kitchen:
Furnished with appliances
Suites:
2
WCs:
1
Terraces:
1 (20.00m²)
Orientation:
West
Location:
City center
Views:
City
Floors:
Parquet
Type of windows:
Glazed
Type of glazing:
Double glazing
Storage room:
No
Hot water:
Yes
Type hot water:
Natural gas
Heating:
Centralized (private meter)
Heating type:
Natural gas
Air conditioning:
Cold-heat
No. of floors:
6
Lift:
Yes
Neighbors in the building:
2
Building year:
1952 (74 year/s)
Emission efficiency value:
69kg/m2/año
Consumption efficiency value:
327kg/m2/año
Doorman:
Yes (Comercial)

Photos

location

Contact us

Information on property

Please, complete the information in this form to send your request

For

Subject

Message

Name

Phone number

Email

Reference



Security code



Don Chamberi
https://www.donchamberi.es/
Tfn 910593085


Professionals


How to advertise
Real estate agencies
Contact us
RSS

©2017 Casas-Madrid.com
Artek Soluciones Informáticas.
C. Doña Micaela Hernández, 1. Oficina 2.

Privacy policy